Торговый Центр

Современный торговый центр включает в себя продуктовый магазин, фитнес-центр, детский магазин и павильоны. Проект ориентирован на создание комфортабельной и удобной среды для покупателей, обеспечивая широкий ассортимент услуг и товаров. Архитектурное решение сочетает функциональность и эстетическую привлекательность, отвечая высоким стандартам и требованиям современного ритейла.

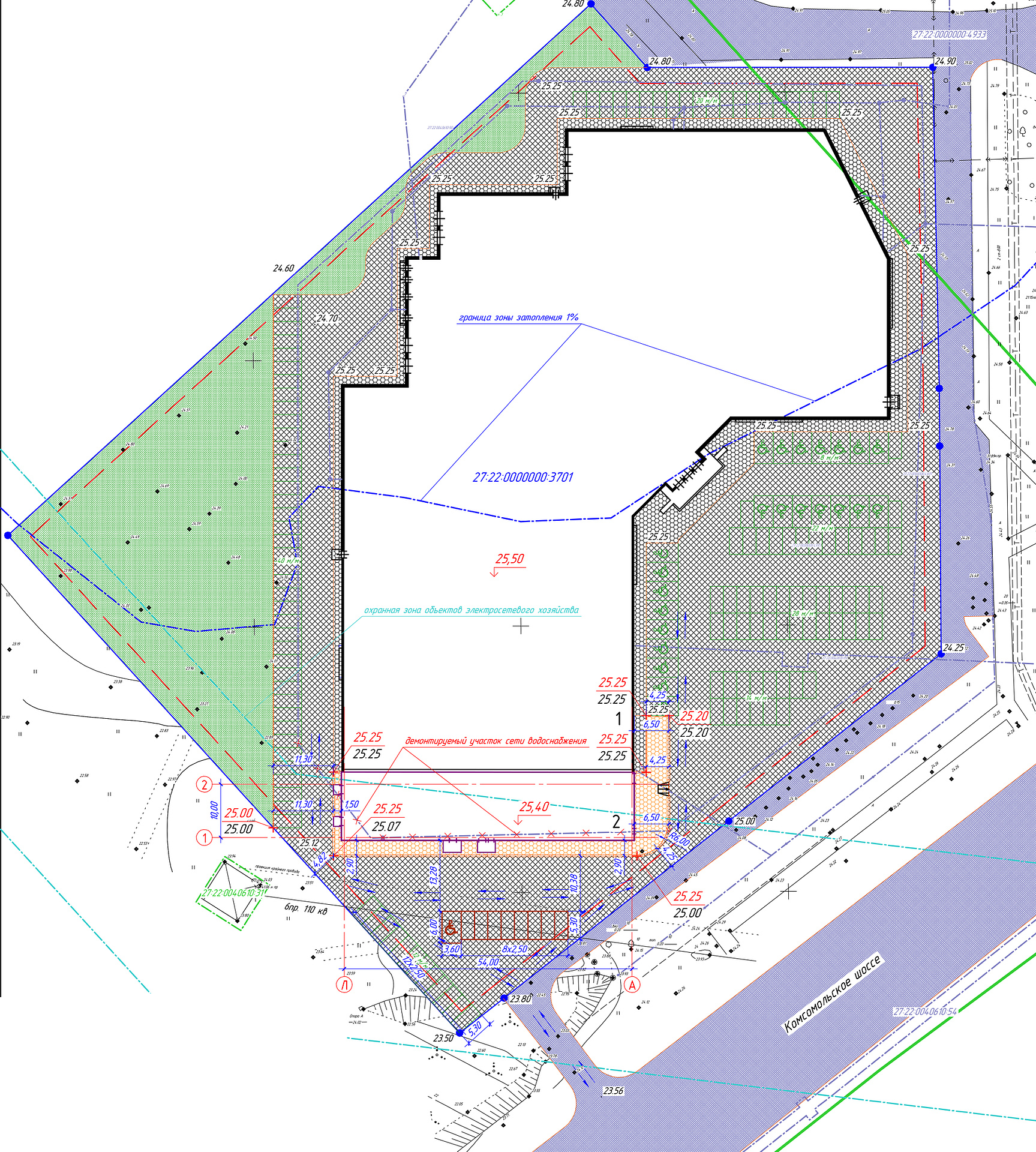
Характеристики

Площадь земельного участка -20400,00 м.кв.
Площадь застройки –8466,05 м.кв.
Общий строительный объем здания – 82728,07 м.куб
Общая площадь — 8217,13 м.кв.
Полезная площадь -8290,74 м.кв.
Расчетная площадь-7883,27 м.кв.
Торговая площадь-3869,27 м.кв.